Kontaktieren Sie uns:
info@s-immo-kraichgau.de Tel. 07251 77-3333 Kontaktformular

90% Verkauft! #H23 - Modernes Wohnen in Bretten! Sichern Sie sich die letzten Wohnungen!

Wohnung 14 Bild 1: Wohnung 14 Beispielbild Wohnzimmer Bild 2: Beispielbild Wohnzimmer Beispielbild Schlafzimmer Bild 3: Beispielbild Schlafzimmer Beispielbild Kinderzimmer Bild 4: Beispielbild Kinderzimmer Beispielbild Bad Bild 5: Beispielbild Bad Beispielbild Küche Bild 6: Beispielbild Küche Außenaufnahme 18.11.2025 Bild 7: Außenaufnahme 18.11.2025 Außenaufnahme 18.11.2025 Bild 8: Außenaufnahme 18.11.2025 Außenaufnahme 18.11.2025 Bild 9: Außenaufnahme 18.11.2025 Außenaufnahme 18.11.2025 Bild 10: Außenaufnahme 18.11.2025 Beispielbild_Wohnzimmer Bild 11: Beispielbild_Wohnzimmer Beispielbild_Wohnzimmer Bild 12: Beispielbild_Wohnzimmer Beispielbild_Bad Bild 13: Beispielbild_Bad Beispielbild_Bad Bild 14: Beispielbild_Bad Ansicht Nordost Bild 15: Ansicht Nordost Ansicht Südost Bild 16: Ansicht Südost Ansicht Süd Bild 17: Ansicht Süd Ansicht Nord Bild 18: Ansicht Nord Ansicht Ost Bild 19: Ansicht Ost Ansicht Spielplatz Bild 20: Ansicht Spielplatz

Preise

Kaufpreis:
420.000,00 €
Provision:
prov.frei

Kontakt-Person:

Nico Gerold
+497251773984
bretten@s-immo-kraichgau.de

Details

Objektnr. extern:
11111-14
Nutzungsart:
Wohnen
Vermarktungsart:
Kauf
Objektart:
Wohnung (Etage)
Ort:
75015 Bretten
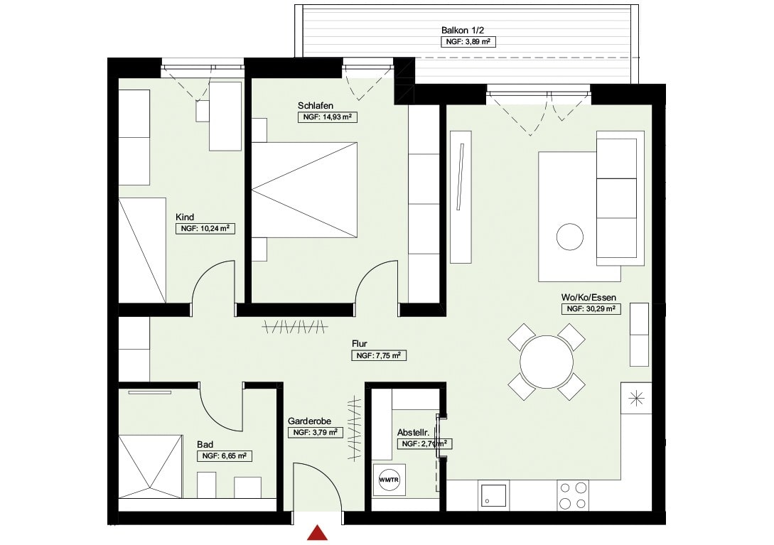
Wohnfläche:
77,96 m²
Anzahl Zimmer:
3
Zustand:
Erstbezug
Ausstattung:
Bauweise: Massiv Personenaufzug Fußbodenheizung
Objektbeschreibung:
Endspurt bei unserem sehr beliebten Neubauprojekt #H23! Bereits 90% der Wohnungen sind verkauft. Nutzen Sie jetzt die letzte Gelegenheit und sichern Sie sich noch in diesem Jahr Ihre Traumwohnung in sehr guter Lage.

Aktuell besteht noch die Möglichkeit Ihre Wohnung nach Ihren Wünschen auszustatten. Lassen Sie sich diese Chance nicht entgehen. Nach aktuellem Baufortschritt ist die Fertigstellung für April 2026 geplant.

Dieses außergewöhnliche Neubauprojekt in Bretten bietet Ihnen die Vorzüge aus städtischem Wohnen sowie kurzen Wegen in die Natur. Die Melanchtonstadt Bretten liegt landschaftlich reizvoll im Herzen des Kraichgaus und bietet Ihnen und Ihrer Familie alles für ein Lebenswertes Leben.

Besonders bekannt ist sie für Ihre von Fachwerkhäusern geprägte Innenstadt. Hier steht eine Vielzahl an verschiedensten Gastronomieangeboten zur Verfügung sowie diverse Einzelhändler. Für den täglichen Bedarf sind einige Supermärkte vorhanden.

Bretten eignet sich auch für Familien optimal als Wohnort. Das Schulzentrum mit Gymnasien und Berufsschulen sorgt für die Bildung, ein breites Vereinsangebot sowie z.B. das Freizeitbad für Freizeitangebote.

Das Projekt selbst entsteht in sehr guter Lage von Bretten. Die Innenstadt ist fußläufig erreichbar, ebenso wie der S-Bahnhof "Bretten-Stadtmitte". So sind Sie verkehrsmäßig optimal angebunden. Ein Einkaufszentrum mit Supermärkten und weiteren Geschäften befindet sich ebenfalls praktisch vor der Haustüre. So können Sie Ihren Wocheneinkauf bequem zu Fuß erledigen.

Inmitten dieses urbanen Gebietes entstehen für Sie insgesamt 22 Wohneinheiten auf höchstem Wohnniveau. Mit Größen zwischen ca. 60 m² und 120 m² und zwei bis vier Zimmern haben wir für jeden Bedarf die richtige Wohnung. Diese bestechen mit Ihrer sehr guten Ausstattung zu der beispielsweise elektrische Rollläden, Fußbodenheizung, 3-fach Verglasung. Alle Wohnungen verfügen ebenfalls über einen Balkon bzw. Terrasse.
Durch die besonders energiesparende Bauweise sowie den Anschluss an das Fernwärmenetz, gehören für Sie als Eigentümer, Energiesorgen der Vergangenheit an.

Jede Wohnung verfügt zudem über einen eigenen Abstellraum, der sich auf der jeweiligen Etage befindet.

Zögern Sie nicht und kontaktieren Sie uns für einen persönlichen und individuellen Besichtigungstermin!

Gerne können Sie die Finanzierungsberater der Sparkasse Kraichgau unter www.sparkasse-kraichgau.de/baufinanzierung kontaktieren. Denn es gibt Wünsche, die dulden keinen Aufschub.
Ausstattung:

Individuelle Ausstattungsmerkmale:

 

- elektr. Rollläden

- dreifach verglaste Fenster

Sonstiges:
Für weitere Informationen sowie ein ausführliches Exposé kontaktieren Sie bitte den Anbieter.

Die Angaben im Exposé beziehen sich auf die Informationen des Auftraggebers. Eine Gewähr für die vollständige Richtigkeit kann nicht übernommen werden. Die Abbildungen sind nicht maßstäblich und dienen der Illustration. Bei Flächenmaßen handelt es sich um Circa-Angaben vom Eigentümer oder Rohbaumaße. Das dargestellte Mobiliar ist nur ein beispielhafter Einrichtungsvorschlag.

Energiepass

Jahrgang:
nicht_noetig
Baujahr:
2025

Kontakt-Person:

Nico Gerold
+497251773984
bretten@s-immo-kraichgau.de